Hintham 4,
Rosmalen
€ 795.000
Introductie
Spoormakers Makelaardij heet je van harte welkom aan de Hintham 4 in Rosmalen. Deze ruime, stijlvol gemoderniseerde en karakteristieke vooroorlogse woning heeft een heerlijke, rustige en ruime tuin, een stenen berging en een grote garage (ca. 28 m²) achter in de tuin. De woning is gelegen nabij de binnenstad en aan de rand van de populaire wijk Hinthamerpark. Dit karakteristieke woonhuis is door de jaren heen met zorg verbouwd en smaakvol gemoderniseerd, met een hoog afwerkingsniveau dat consequent is doorgevoerd. Zo beschikt de woning over prachtige paneeldeuren, fraai deurbeslag, mooie houten vloeren op iedere verdieping en strak gestuukte wanden en plafonds. De woning biedt opvallend veel leefruimte op de begane grond en vormt, in combinatie met vijf slaapkamers, de ruime tuin, garage en berging, een bijzonder comfortabel familiehuis op een zeer gunstige locatie. De omgeving is bijzonder fraai en kindvriendelijk, de ligging ten opzichte van het centrum is ideaal en binnen enkele minuten zijn uitvalswegen, sportvoorzieningen, winkels en station bereikbaar.
Kenmerken
| status | Beschikbaar |
|---|---|
| bouwjaar | 1939 |
| energielabel | C |
| locatie | Rosmalen |
| oppervlakte | 200+ m² |
| slaapkamers | 5 |
| woonoppervlakte | 145 m² |
Omschrijving
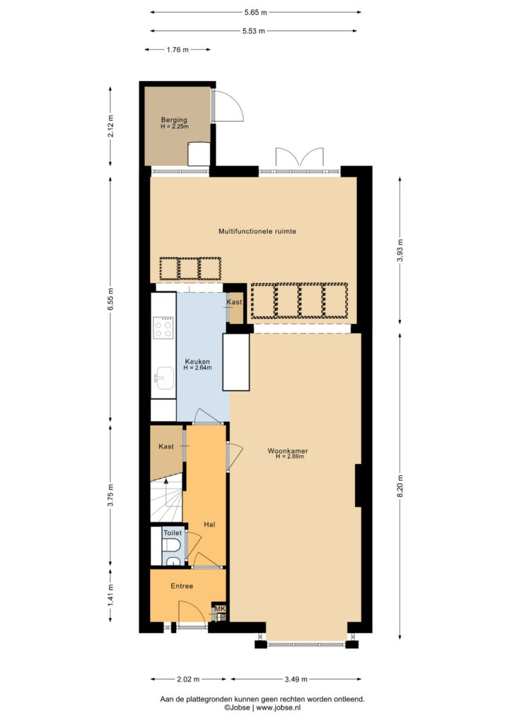
ENTREE Vanuit de voortuin bereik je via een prachtige halfronde voordeur met glas-in-lood de vestibule. Naast de voordeur bevindt zich een bijpassend glas-in-loodraam, wat direct zorgt voor een warme en karakteristieke binnenkomst. De entree biedt voldoende ruimte voor een garderobe en is afgewerkt met een fraaie terrazzo vloer. Vanuit hier bereik je de hal.
HAL De hal vormt het centrale punt van de woning en geeft toegang tot de moderne toiletruimte, de leefruimte, een verdiepte kelderkast en de vaste trap naar de eerste verdieping. Het toilet is voorzien van een charmant vrij- en bezetslot. De trap beschikt over de authentieke trapleuning en een stijlvolle loper. Ook hier is de prachtige terrazzo vloer doorgelegd, wat zorgt voor een mooi geheel.
WOONKAMER De woonkamer is een echte eyecatcher en wordt gekenmerkt door veel lichtinval dankzij de grote raampartijen aan de voor- en achterzijde en de lichtstraten. Bijzonder detail is het glas-in-lood dat terugkomt in zowel de erker als boven de openslaande deuren, in dezelfde stijl als bij de voordeur. De ruimte is afgewerkt met een fraaie visgraat gelegde eiken parketvloer.
KEUKEN De lichte keuken is voorzien van een authentieke terrazzovloer en een modern keukenmeubel met diverse inbouwapparatuur, waaronder een inductiekookplaat en een koelvriescombinatie. Een bijzonder detail zijn de berkenhouten lades aan de binnenzijde. Daarnaast is een originele inbouwkast behouden gebleven, wat bijdraagt aan het karakter van de woning. Aan de achterzijde van de woning is ruimte voor een speelhoek of extra zitgedeelte. Via de openslaande deuren bereik je de tuin, waardoor binnen en buiten mooi met elkaar verbonden zijn.
EERSTE VERDIEPING De overloop geeft toegang tot drie slaapkamers, de badkamer en de trap naar de zolder. De slaapkamers zijn licht, twee ruime slaapkamers beschikken over vaste kasten.
BADKAMER De moderne badkamer is compleet ingericht en voorzien van een ligbad, douche, toilet en een dubbele wastafel met meubel. Ook hier is gedacht aan details, zoals het karakteristieke vrij- en bezetslot op de deur.
ZOLDER De grote, hoge zolderverdieping beschikt over een overloop met toegang tot de vierde en vijfde slaapkamer, beide voorzien van een dakkapel. Daarnaast is er een aparte wasruimte met aansluitingen voor wasmachine en droger en een wastafel met meubel. Ook is er een afsluitbare bergruimte aanwezig, ideaal voor extra opslag.
TUIN De achtertuin is gelegen op het noorden en bereikbaar via de openslaande deuren in de leefruimte. De ruime, rustig gelegen tuin biedt veel privacy en is verzorgd aangelegd met een terras van klinkers. Op ieder moment van de dag kun je hier van de zon genieten. De beplanting, zoals leibomen, een rozenstruik, hortensia’s en een red robin, zorgt voor een groene en sfeervolle uitstraling. De tuin beschikt over een berging, een achterom aan de zijkant en geeft tevens direct toegang tot de royale garage.
BIJZONDERHEDEN
– Zeer karakteristieke jaren ’30 woning met originele details
– Temperatuur per ruimte afzonderlijk regelbaar
– Vijf slaapkamers
– Ruime garage met elektrische garagedeur met afstandsbediening
– Zonnepanelen op het garagedak
– Privacyvolle tuin met sfeervolle beplanting en achterom.
Deze informatie is door ons met zorg voor je samengesteld. We aanvaarden echter geen aansprakelijkheid voor enige onvolledigheid, onjuistheid of anderszins, dan wel voor de gevolgen daarvan. Alle opgegeven maten en oppervlakten zijn indicatief.





















































