Hertelaan 61,
Helmond
€ 535.000
Introductie
Spoormakers Makelaardij heet je van harte welkom aan de Hertelaan 61 in Helmond. Deze fijne gezinswoning is gelegen in een rustige en groene woonomgeving in het geliefde oud-Brouwhuis. De woning beschikt over vier slaapkamers, een sfeervolle tuin met meerdere zitplekken en een praktische indeling verdeeld over drie woonlagen. Een heerlijke plek voor wie comfortabel wil wonen met alle dagelijkse voorzieningen binnen handbereik. Diverse scholen, winkelcentrum Brouwhorst met winkels voor de dagelijkse boodschappen en NS-station Brouwhuis bevinden zich op korte afstand van de woning. Daarnaast is er een uitstekende verbinding met de N270 en A67 richting Eindhoven. Dit maakt de woning uitermate geschikt voor gezinnen en forenzen.
Kenmerken
| status | Beschikbaar |
|---|---|
| bouwjaar | 1994 |
| energielabel | B |
| locatie | Helmond |
| oppervlakte | 300+ m² |
| slaapkamers | 4 |
| woonoppervlakte | 120 m² |
Omschrijving
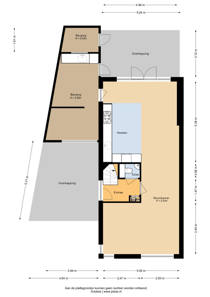
ENTREE
Via de ruime oprit bereik je onder de carport de entree van de woning. Vanuit de hal heb je toegang tot het toilet, de trap naar de eerste verdieping en de leefruimte.
LEEFRUIMTE
De leefruimte is licht en prettig ingedeeld, met voldoende ruimte voor zowel een gezellige zithoek als een royale eethoek. Dankzij het hoekraam tot op de grond valt er op een fijne manier veel daglicht naar binnen, wat zorgt voor een open en aangename sfeer. De tegelvloer op de begane grond vormt een praktische en verzorgde basis. Via de openslaande deuren aan de achterzijde stap je direct de tuin in, waardoor binnen en buiten mooi in elkaar overlopen.
KEUKEN
De keuken is praktisch ingericht en voorzien van diverse apparatuur. Een echte blikvanger is het Boretti gasfornuis met oven, aangevuld met een Boretti combi-oven. Een fijne plek voor kookliefhebbers, met volop mogelijkheden voor dagelijks gebruik en uitgebreid koken.
EERSTE VERDIEPING
De eerste verdieping beschikt over drie slaapkamers en een badkamer. Er zijn twee eenpersoonsslaapkamers en één ruime tweepersoonsslaapkamer, waardoor deze verdieping ideaal is voor een gezin of voor wie graag extra werk- of hobbyruimte heeft.
BADKAMER
De moderne badkamer is stijlvol afgewerkt en voorzien van een wastafelmeubel met spiegelkast, glazen douchecabine, designradiator, inbouwkranen en een toilet. De ruimte heeft een verzorgde en eigentijdse uitstraling.
ZOLDER Via de vaste trap bereik je de zolderverdieping. Hier bevindt zich een vierde slaapkamer. Op de overloop is een praktische plek gecreëerd voor de wasmachine en droger. Daarnaast bevindt de cv-opstelling zich in een aparte kast. Onder de schuine kap is bovendien veel extra bergruimte gerealiseerd, wat deze verdieping extra praktisch maakt.
GARAGE / BIJKEUKEN
De garage is praktisch ingedeeld en voorzien van dubbele openslaande deuren. Daarnaast is er een tussenwand geplaatst, waardoor een handige bijkeuken is gerealiseerd. Achter de garage bevindt zich bovendien nog een extra berging, ideaal voor het opbergen van fietsen, gereedschap of tuinspullen. Aan de garage is tevens een carport aanwezig.
TUIN
De achtertuin is verzorgd aangelegd en voorzien van kunstgras, wat zorgt voor een onderhoudsvriendelijke buitenruimte. Direct aan de woning bevindt zich bij de openslaande deuren een glazen overkapping met zithoek, waardoor je al vroeg in het seizoen heerlijk buiten kunt zitten. Achter in de tuin bevindt zich een sfeervol tuinhuis / mancave met bar (en zelfs een urinoir). Deze ruimte is voorzien van dubbele glazen schuifdeuren, waardoor het een heerlijke plek is om vrijwel het hele jaar door te genieten met vrienden en familie.
BIJZONDERHEDEN
- Gelegen in een rustige en groene woonomgeving in oud-Brouwhuis
- Vier slaapkamers
- Moderne badkamer
- 13 zonnepanelen
- Garage met carport, bijkeuken en extra berging
- Onderhoudsvriendelijke tuin met meerdere fijne zitplekken
- Nabij scholen, winkels en NS-station Brouwhuis
Deze informatie is door ons met zorg voor je samengesteld. We aanvaarden echter geen aansprakelijkheid voor enige onvolledigheid, onjuistheid of anderszins, dan wel voor de gevolgen daarvan. Alle opgegeven maten en oppervlakten zijn indicatief.




















































